Come viene eseguito il lavoro
Il processo di studio e progettazione degli interni di un immobile è fondamentale per garantire un risultato finale che rispecchi le esigenze e i desideri del cliente. Qui di seguito un riepilogo delle fasi principali del processo, come descritto:
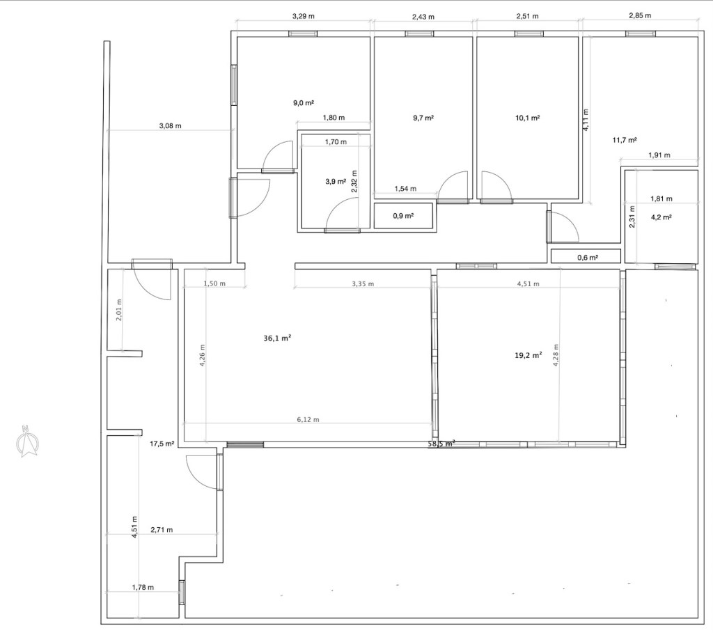
Rilievo dell’immobile: Un tecnico specializzato visita l’immobile per effettuare un rilievo accurato delle stanze. Questa fase prevede la misurazione di tutte le dimensioni, comprese le altezze, le larghezze, le profondità e la posizione delle aperture (finestre, porte, etc.).
Planimetria dettagliata: Sulla base delle misurazioni ottenute, viene realizzata una planimetria dettagliata che rappresenta l’immobile o le stanze in questione. Questa pianta serve come base per ulteriori sviluppi e progettazioni.

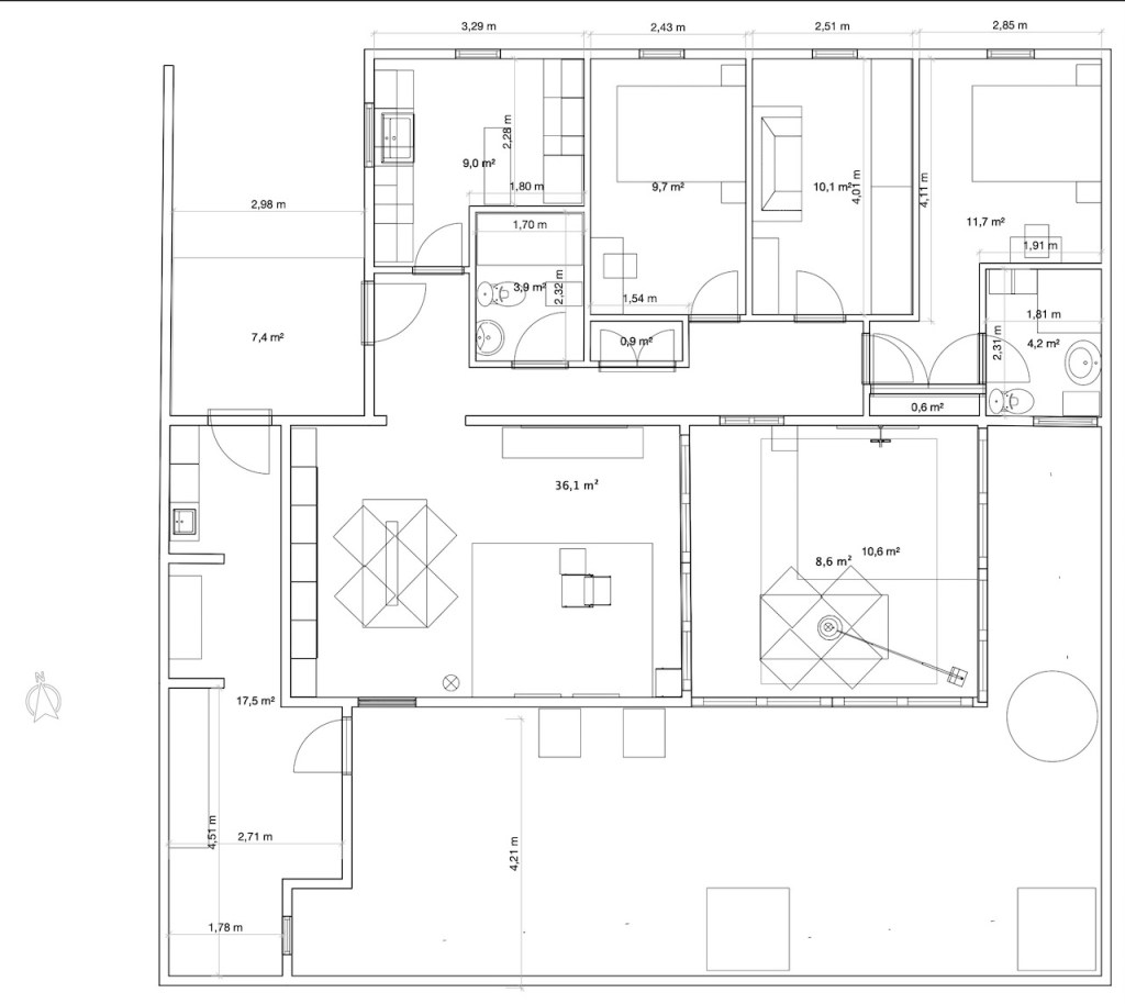
Disposizione dei mobili: Viene poi elaborata una planimetria che mostra la disposizione ideale dei mobili. È importante considerare non solo l’estetica, ma anche la funzionalità e la praticità degli spazi.

Soluzioni ideali: Durante questa fase, il progettista discute con il cliente le diverse opzioni di design e soluzioni possibili, tenendo conto delle preferenze estetiche, delle necessità operative e del budget disponibile.



Rendering: Una volta definite le scelte progettuali, viene realizzato un rendering 3D che rappresenta visivamente come apparirà il lavoro una volta completato. Questo fornisce una panoramica chiara e concreta del progetto finale, permettendo al cliente di visualizzare il risultato.




Realizzazione del progetto: Con l’approvazione del rendering e delle planimetrie, si procede con la realizzazione effettiva del progetto. Questa fase può coinvolgere diversi professionisti, tra cui artigiani, muratori e elettricisti, a seconda delle necessità del progetto.
Documentazione fotografica: Infine, il processo di lavoro viene documentato con foto che mostrano le varie fasi del progetto, dalla fase di rilievo fino al completamento, offrendo così un resoconto visivo dell’intero processo.





Questo approccio metodico non solo assicura un risultato finale di alta qualità, ma aiuta anche a mantenere il progetto in linea con le aspettative del cliente.